過ごしやすさだけじゃない、自分流におしゃれに。
自分たちの人生、普通の家で満足できる?『自分流』で家という空間を楽しみたい。
使い勝手だけに振り切らず無骨に、ちょっと癖がある方が自分たちらしい。
メンズライクな無骨さと、カフェのくつろぎをひとつに。
「男前CAFE STYLE」の空間づくりの魅力を、ポイントでご紹介します。

木のぬくもりにアイアンの無骨さをプラス。異素材の組み合わせが、メンズライクでありながら温かみのあるカフェスタイルを演出します。

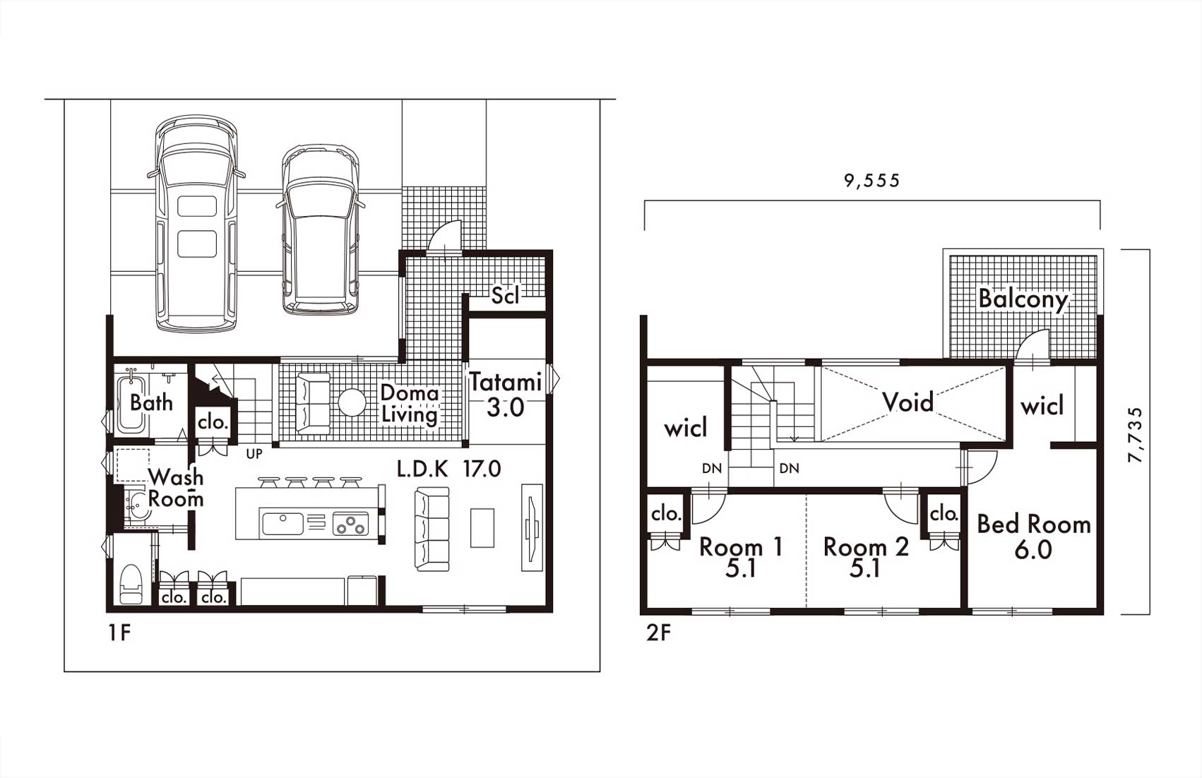
高断熱ドアで快適さを確保しつつ、玄関から続く広い土間スペースをプラン。ペットの居場所に、自転車のメンテナンスに、ハンモックでのんびりするのもアリ。「外」と「内」の中間のような空間は、暮らしのアイデア次第で自由自在に楽しめます。

屋根はスタイリッシュなガルバリウム鋼板、外壁は耐久性に優れた窯業系サイディングを採用。さらに高断熱サッシで快適な室内環境を実現。無骨なデザイン性と機能性を兼ね備えた、頼れる住まいです。

あえて「和室」ではなく、リビングとつながるタタミスペースを。ちょっと横になったり、子どもが遊んだり、来客用の簡易スペースにしたり。暮らしにフィットする自由な使い方ができる、現代的な畳のスタイルです。

HOUSE DATA
| 延床面積 | 104.14㎡(31.50坪) |
|---|---|
| 1階面積 | 59.42㎡(17.97坪) |
| 2階面積 | 44.72㎡(13.53坪) |
| 施工面積 | 118.84㎡(35.95坪) |
他のプランも気になる方、商品について
詳しく知りたい方はこちら